A collage of interior design photos including a kitchen with dark cabinets, a dining table with vases and flowers, and tableware on shelves. A sample fabric swatch and a numbered fabric sample card labeled 'Lindsay Cowles' are pinned to a board.

Our Services

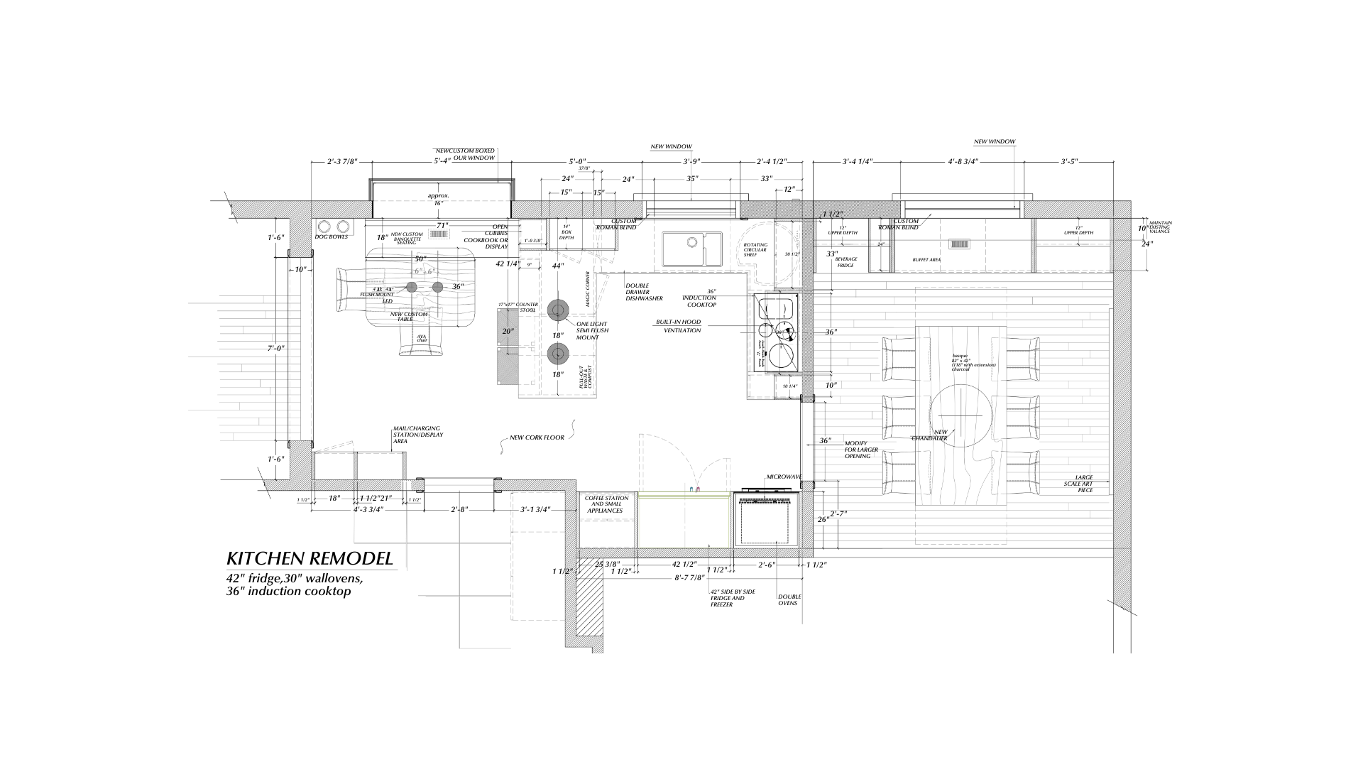
Tailoring a floorpan that fits your space and communicates solutions that build your project is the foundation of our service. We see your project from all angles.

Collaborating closely with you, your architect, builder or carpenter, we provide:

  • Custom CAD layout drawings and material guide

  • Cabinetry millworker drawings

  • Custom furniture design

  • Soft furnishings, art and object placements

Flat rates are quoted based on service and project.

  • A bathroom designed for renewal is more than a functional space, it is a quiet retreat.

    A place to slow down and pause while the senses gently awaken and everyday rituals become moments of restoration.

    Through thoughtful layering and a selection of natural materials, soft lighting and calming textures, the space invites you to breathe and reconnect.

    Here even the simplest routines feel intentional, grounding and deeply restorative.

  • The 'Non-Kitchen’ Kitchen Design.

    The hub of the home and the centre of our daily lives where details matter.

    Designed to set the stage and tone for the home, the kitchen feels deeply integrated, organized and beautiful.

    Explore the many thoughtful details, material combinations and an opportunity to discover new technologies and efficiencies in appliances.

    ‍Here, the simple act of cooking becomes grounding, sharing becomes meaningful and the kitchen transforms into a place of comfort, connection and everyday joy.

  • A Complete Home Renovation or New Build Construction

    When a home feels luxurious, it is because every decision has been consciously considered.

    A full scale home design project comes from a series of thoughtful considerations. Each detail put together to create an atmosphere that feels effortless and aligning with your values and lifestyle.

    Breeze through your home from entry to exit with a sense of pride and a place for everything considered.

    For the best experience, consider beginning your project approximately 14 months in advance.

Architectural floor plan of a building, showing various rooms, fixtures, and structural details in white lines on a black background.
A woman with dark hair looking down at fabric swatches on a table, in a room with artworks and shelves in the background.
A clear acrylic tray with various stones, fabric swatch, and small decorative objects on a white surface.

An idea may spark inspiration but it is the planning behind it that brings it to life